home
Grundrisse
Im Blickpunkt - News TV
Nachrichtensender in Köln
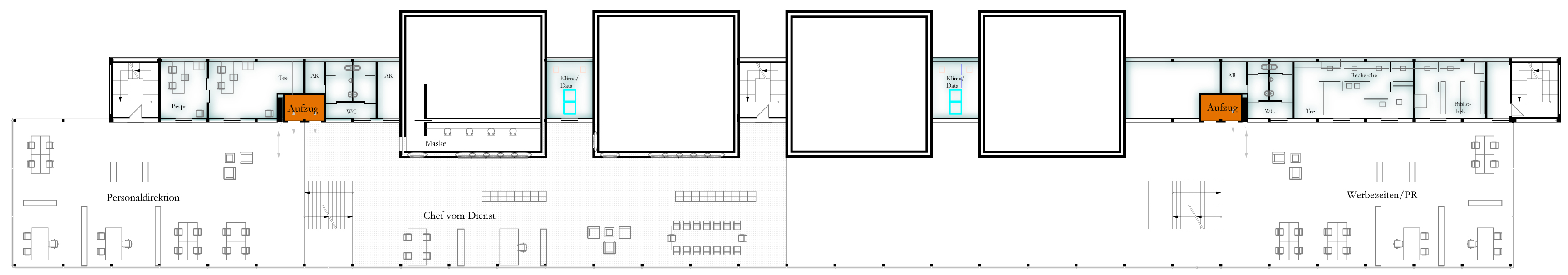
Ebene 0
Ebene 1
Ebene 2
Ebene 3